Оставить заявку
мы перезвоним или напишем вам
Ваше имя * Телефон * Почта Сообщение
Рассчитать стоимость проекта
8 (930) 114-16-90
Главная — Барнхаус 110 м²

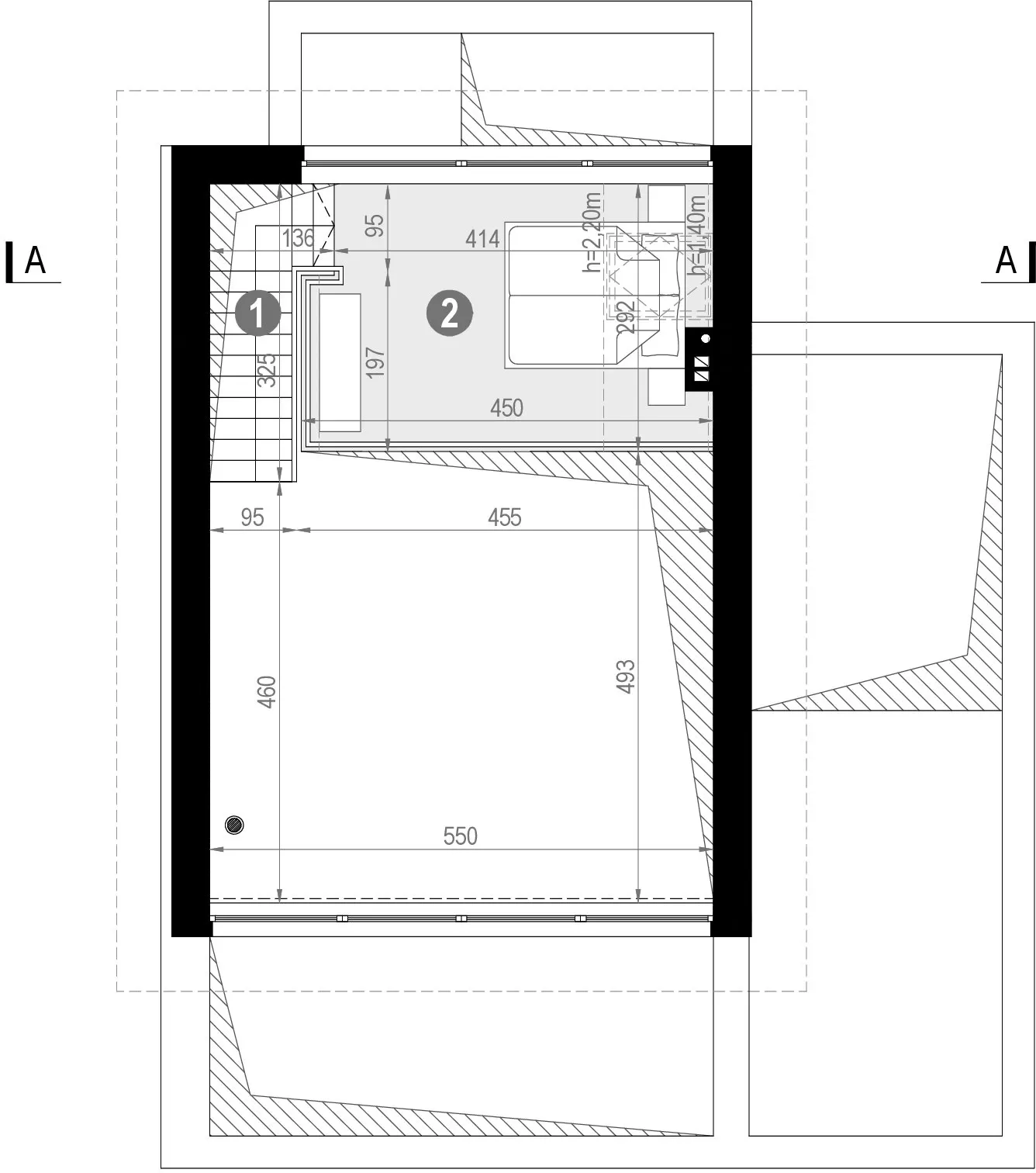
Барнхаус 110 м²

Рассчитать стоимость проекта

Расчетная площадь: 110 м2

Террасы/балконы: Не учтены

Высота 1-го этажа:2.5м (опция до 3.0м)

Аттиковая стена:0.6м (опция до 2.0м)

Цена:
2200000 руб.
Рассчитать стоимость дома под ключ
Фундамент
Перекрытие первого этажа
Водосточная система
Перекрытие фундамент
Перекрытие второго этажа
Фасад здания
Материалы стен
Крыша
Пластиковые окна
Утепление стен
Утепление крыши
Отделка цоколя
Лестница
Товар "" добавлен в корзину
Перейти в корзину Продолжить покупки