Оставить заявку
мы перезвоним или напишем вам
Ваше имя * Телефон * Почта Сообщение
Рассчитать стоимость проекта
8 (930) 114-16-90
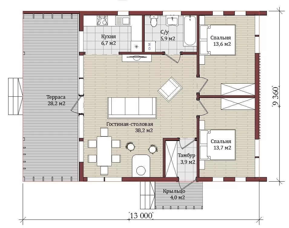
Главная — Барнхаус 110,2 м²

Барнхаус 110,2 м²

Рассчитать стоимость проекта

Общая площадь 110,2 м2

Этажность 1

Габариты 13х9,3 м

Фундамент:

Бетонные забивные сваи 150*150*3000 мм. Возможно применение других типов фундаментов

Цена:
2204000 руб.
Рассчитать стоимость дома под ключ
Фундамент
Перекрытие первого этажа
Водосточная система
Перекрытие фундамент
Перекрытие второго этажа
Фасад здания
Материалы стен
Крыша
Пластиковые окна
Утепление стен
Утепление крыши
Отделка цоколя
Лестница
Товар "" добавлен в корзину
Перейти в корзину Продолжить покупки